U-Shaped Kitchen Design Ideas You’ll Love

Breakfast Bar Peninsula U Shaped Kitchen Design Ideas
Explore 10+ inspired U-shaped kitchen design ideas—from compact to large layouts—with style tips, storage solutions and layout best-practices for modern homes.

Table of Contents

A U-shaped kitchen design wraps around you on three sides, with counters and cabinets forming the shape of a “U.” It’s one of the most practical and timeless kitchen layouts — ideal for both busy families and passionate home cooks. This design maximizes storage, provides generous countertop space, and keeps the cooking workflow efficient by placing everything within easy reach.

Modern white U Shaped Kitchen Design Ideas with red pendant lights

Its popularity comes from its versatility — whether your kitchen is compact or open-plan, the U-shaped layout adapts beautifully. In this guide, we’ll explore the foundations of U-shaped kitchens, key design and styling tips, and 10+ creative ideas to inspire your next renovation.

Design Foundations for U-Shaped Kitchens

Stylish beige U Shaped Kitchen Design Ideas with dining island

A great kitchen starts with smart planning. Here are the key principles behind a well-designed U-shaped kitchen layout:

Work Triangle & Appliance Placement

In a U-shaped kitchen, the classic work triangle — sink, stove, and refrigerator — fits naturally along the three walls. Keep each element within a comfortable distance, ideally 4–9 feet apart. This layout minimizes unnecessary movement, making cooking more fluid and enjoyable.

Clearances & Walkways

Aim for at least 42–48 inches of clearance between opposite counters to allow comfortable movement. Wider aisles (around 48 inches) work better for multi-user kitchens. In smaller kitchens, consider narrower base cabinets or open shelving to maintain good circulation without crowding the space.

Smart Corner & Storage Solutions

Corners are valuable but tricky spaces in U-shaped kitchens. Use lazy Susans, pull-out trays, or diagonal corner cabinets to maximize usability. Deep drawers are perfect for pots and pans, while narrow pull-outs can hold spices or cleaning supplies, keeping every inch functional.

When to Add an Island or Peninsula

If space allows, adding an island or peninsula enhances versatility. An island can serve as a prep area, dining counter, or social hub. A peninsula — an attached extension of one side of the “U” — is great for smaller homes, creating extra seating without requiring more floor space.

10+ U-Shaped Kitchen Design Ideas

If you’re dreaming of a kitchen that’s efficient, stylish, and full of storage, a U-shaped layout might be your perfect match. It surrounds you on three sides with worktops and cabinets, creating an easy flow between prep, cooking, and cleaning zones. Below are 15 inspiring U-shaped kitchen design ideas to help you plan your dream space — from compact urban kitchens to spacious family hubs.

1. Minimalist All-White U-Shape — Clean, Crisp, Bright

Minimalist All White U Shape, U Shaped Kitchen Design Ideas

An all-white U-shaped kitchen creates a sense of openness and calm. The light tone reflects natural light, making the space feel larger and airier. Keep hardware minimal and pair glossy cabinetry with subtle textures like marble countertops or matte backsplashes for a balanced, modern look.

2. Dual-Tone U-Shape — Stylish Contrast

Dual Tone U Shape U Shaped Kitchen Design Ideas

Mixing two tones — for example, navy lowers and white uppers — adds depth and character. The dual-tone approach breaks up the long runs of cabinetry and highlights each side of the U. This works especially well in medium to large kitchens where contrast enhances the overall visual interest.

3. U-Shape with Island — Social and Spacious

U Shape with Island U Shaped Kitchen Design Ideas

For larger kitchens, adding an island inside the U provides extra prep area and a central spot for casual dining or entertaining. The island can also host a cooktop or sink, improving workflow. Keep at least 42–48 inches of clearance around it for smooth circulation.

4. Compact U-Shape for Small Homes — Smart Efficiency

Compact U Shape for Small Homes U Shaped Kitchen Design Ideas

Even in tight spaces, a U-shaped layout can shine. Use open shelving instead of upper cabinets on one wall to reduce visual weight. Light colours, integrated appliances, and clever corner storage (like pull-outs or lazy Susans) make every inch count without feeling cramped.

5. Open-Plan U-Shape — Seamless Living Connection

Open Plan U Shape, U Shaped Kitchen Design Ideas

In open-concept homes, a U-shaped kitchen that opens into the dining or living area encourages conversation and flow. Use one leg of the U as a breakfast bar or serving counter. Choose consistent flooring and finishes between zones to visually connect the spaces.

6. Statement Backsplash or Bold Cabinetry

L Shaped Kitchens, Statement Backsplash & Bold Cabinetry

A U-shaped layout naturally frames the backsplash area, making it the perfect spot to add personality. Try bold tiles, patterned marble, or even a striking cabinet colour on one wall. This adds a stylish focal point while maintaining a balanced, functional design.

7. Rustic Timber U-Shape — Warm and Inviting

Rustic Timber U Shape, U Shaped Kitchen Design Ideas

For a cosy, farmhouse feel, use warm timber cabinetry paired with stone or quartz countertops. Natural materials add texture and charm, while the U-shape keeps everything within easy reach. Brass fixtures or open wooden shelves can complete the rustic aesthetic.

8. Handleless Slab-Front U-Shape — Sleek Minimalism

Handleless Slab Front U Shape U Shaped Kitchen Design Ideas

Perfect for contemporary homes, handleless cabinets create an uninterrupted, streamlined surface. Use glossy or matte finishes depending on your style. Pair with built-in appliances and subtle LED lighting under the cabinets for a futuristic, clutter-free look.

9. Breakfast-Bar Peninsula — Casual and Functional

Breakfast Bar Peninsula U Shaped Kitchen Design Ideas

Transform one arm of your U into a breakfast-bar peninsula. This adds a casual dining zone for quick meals or coffee breaks while keeping the cook engaged with family or guests. Choose bar stools that match your kitchen’s colour palette for a cohesive finish.

10. Mixed Materials U-Shape — Depth and Texture

Mixed Materials U Shape, U Shaped Kitchen Design Ideas

Combine materials like wood, metal, and glass to create visual variety. For example, matte black lower cabinets with oak uppers and a glass-tile backsplash can make the space feel layered and sophisticated. This idea works beautifully in mid-size modern kitchens.

11. High-Storage U-Shape — Maximising Vertical Space

High Storage U Shape U Shaped Kitchen Design Ideas

If storage is your priority, extend cabinets up to the ceiling on one or more walls. Tall pantry units, appliance garages, and overhead storage make the most of the U’s three sides. Use lighting above and below cabinets to maintain an open, balanced look.

12. U-Shape with Window Over Sink — Bright & Airy

U Shape with Window Over Sink, U Shaped Kitchen Design Ideas

Placing the sink under a window is a timeless design move — and in a U-shaped kitchen, it creates a natural focal point. Maximise natural light with light finishes and reflective surfaces. Add greenery or simple decor on the sill for a welcoming touch.

13. Multi-User Friendly U-Shape — Designed for Families

Multi User Friendly U Shape, U Shaped Kitchen Design Ideas

For households with multiple cooks, a wide-aisle U-shape is a game-changer. Create separate prep and cooking zones by spreading key appliances across the three walls. This setup keeps traffic smooth and allows more than one person to work comfortably.

14. Accessible & Future-Proof U-Shape

Accessible Future Proof U Shape U Shaped Kitchen Design Ideas

Design for comfort and longevity by maintaining wider aisles, adjustable shelves, and ergonomic countertop heights. Use pull-down racks in upper cabinets and slip-resistant flooring. This layout ensures the kitchen stays practical and inclusive for all ages.

15. Eco & Smart U-Shape — The Future of Kitchens

L Shaped Kitchens, Eco & Smart L Shape

Combine sustainable materials — like bamboo, recycled quartz, or FSC-certified wood — with smart technology. Motion-sensor lighting, energy-efficient appliances, and intelligent storage systems make this U-shape both green and high-tech. It’s efficiency, redefined.

Finish, Material & Style Tips for U-Shaped Kitchens

The right finishes can turn a practical layout into a show-stopping space. Here’s how to elevate your U-shaped kitchen design:

Cabinetry & Countertop Choices

Quartz or granite countertops, U Shaped Kitchen Design Ideas

Choose materials that suit your lifestyle. Durable quartz or granite countertops pair beautifully with both modern and traditional cabinets. For a seamless look, continue the countertop material slightly up the wall as a backsplash.

Colour Strategies

Designers choosing kitchen color palettes and samples

You can unify all three sides of the U with a single tone for a cohesive look, or differentiate one run with a contrasting shade or texture for visual depth. Light hues make compact kitchens feel larger, while darker tones add drama in spacious layouts.

Lighting Layers

Lighting Layers, U Shaped Kitchen Design Ideass

Since U-shaped kitchens have multiple zones, use layered lighting — task lighting for counters, ambient lighting for general brightness, and accent lighting to highlight design features. Under-cabinet LEDs are excellent for illuminating worktops while keeping shadows minimal.

Flooring & Backsplash Continuity

Backsplash U Shaped Kitchen Design Ideass

Choose flooring that visually connects the three sides of the U. Continuous materials like tile or engineered wood create a sense of flow. For backsplashes, extend tiles or panels around the corners to unify the layout and make the space appear wider.

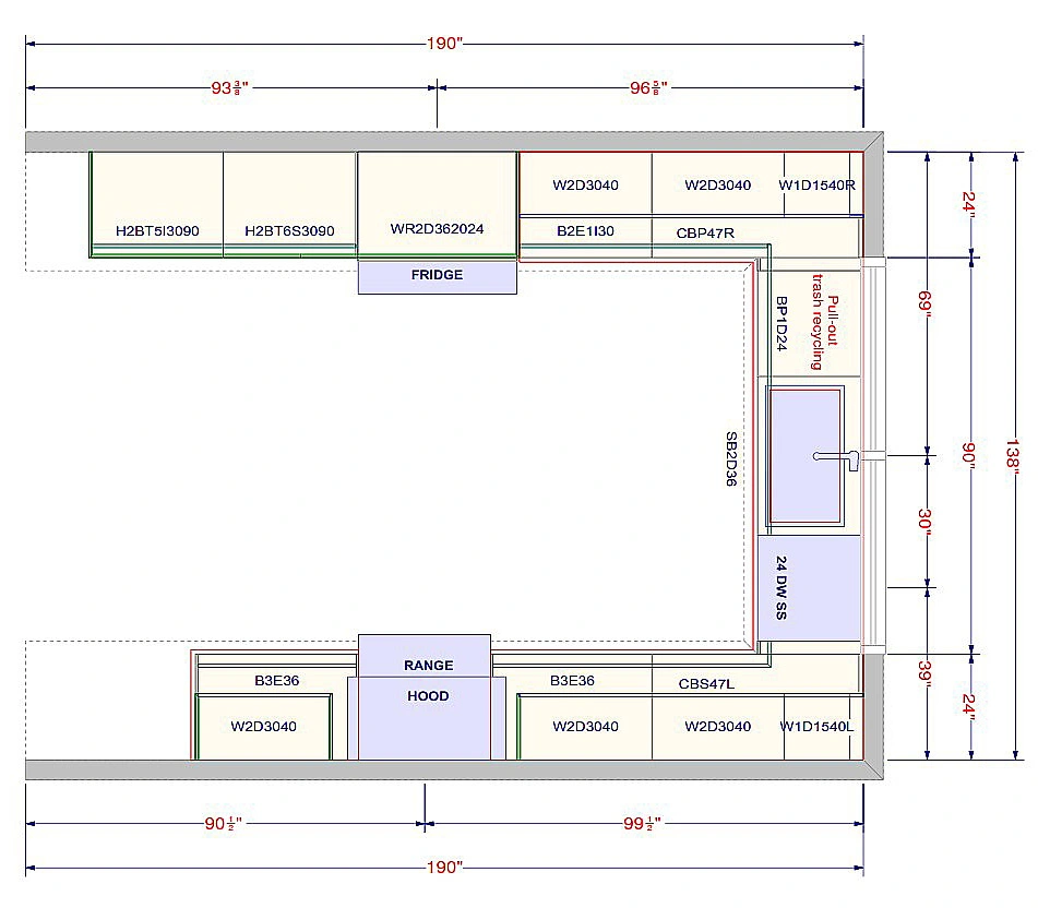
Choosing the Right U-Shaped Design for Your Space

U Shaped Kitchen Design Ideas floor plan with detailed cabinet dimensions

Every home is unique — here’s how to tailor your U-shaped kitchen to fit both your space and lifestyle.

By Room Size

  • Small kitchens: Go for bright colours, open shelving, and minimal ornamentation to keep things light and spacious.

  • Medium kitchens: Add extra counter depth or a slim peninsula for more prep space.

  • Large kitchens: Incorporate an island or secondary sink for enhanced workflow and socializing.

By Lifestyle

  • Solo cooks: Keep everything compact and accessible — a perfect triangle layout works best.

  • Families or entertainers: Wider walkways and multiple prep zones make cooking together easier.

Budget Considerations

A basic U-shaped layout can be very cost-efficient, especially with modular cabinetry. Adding an island, premium finishes, or custom joinery will elevate the aesthetic — and the budget. Plan your investment around longevity and resale value.

Future-Proofing

Consider ergonomics and accessibility — wider aisles, adjustable shelves, and smooth hardware can make your kitchen usable for decades. A timeless, adaptable U-shaped design ensures your kitchen grows with your needs.

Ready to Design Your Dream U-Shaped Kitchen?

Add an Island or Peninsula, U Shaped Kitchen Design Ideas

Transform your kitchen into a space that’s functional, stylish, and truly yours. Whether you’re planning a full renovation or exploring layout ideas, our expert design team is here to help.

Contact us today for a personalized consultation and start bringing your U-shaped kitchen design to life!

FAQs

What is the best layout for a U-shaped kitchen?

The ideal U-shaped kitchen places the sink, stove, and fridge along the three walls forming a “U,” creating a smooth work triangle. Clearance of about 42–48 inches between opposing runs allows comfortable movement.

What are the disadvantages of a U-shaped kitchen layout?

Common drawbacks include:

  • It can feel cramped or closed in with three walls of cabinetry.

  • Corner cabinets can be hard to access.

  • In small spaces, it may reduce floor area and limit openness.

  • On large footprints, it may stretch work zones too far apart.

What is the 3×4 kitchen rule?

The “3×4 rule” typically refers to planning three primary work areas (preparation, cooking, cleaning) each with about four feet (≈ 1.2 m) of workspace. This approach helps maintain efficient workflow and clear zones.

What are common U-shaped kitchen mistakes?

  • Overfilling the space with cabinets and blocking clearance.

  • Putting appliances too far apart, breaking the work triangle.

  • Using deep corner cabinets without good access solutions.

  • Forcing an island or peninsula into a space too small to accommodate proper walkways.

Share the Post:

Leave a Reply

Your email address will not be published. Required fields are marked *